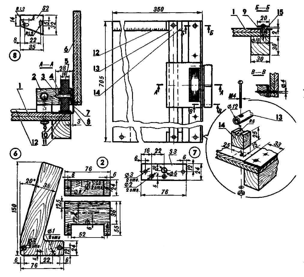
Процесс кадрировки и окончательной отделки фотографии обязательно включает в себя обрезку. Она также необходима при наклейке снимка на лист картона для участия в выставках. Операция сама по себе несложна. Но если она выполнена неаккуратно, может снизиться впечатление от фотографии, даже несмотря на все ее художественные достоинства. Поистине «ложка дегтя портит бочку меда»! Те же резаки, которые выпускает промышленность, справляются со своими функциями не полностью: во-первых, они рассчитаны на небольшие форматы, а во-вторых, просто «отказываются работать» с картоном. Предлагаем вашему вниманию конструкцию, опубликованную в американском журнале «POPULAR SCIENCE». Такой резак позволяет обрабатывать фотографии на любой подложке с размером по длинной стороне до 60 см. Основание изготавливается из фанеры толщиной 10...12 мм. Снизу к нему по длине прикреплены два бруска 30 x 30 мм. Режущий механизм состоит из прижимного ролика, держателя, ножа и фигурной ручки. Держатель перемещается по направляющей трубке 0,12 мм. Одно их ответственных мест в конструкции— определяющая прямолинейность разреза металлическая полоса, по которой скользит лезвие ножа. Она выступает на 3 мм за край основания, а по высоте утоплена в него заподлицо. Крепление осуществляется шурупами (обязательно с потайными головками — иначе есть опасность испортить отпечаток). Чтобы снимок в процессе обрезки не смещался, обрезинениый ролик прижимает его через подпружиненную накладку к основанию. А для контроля линии обреза накладку следует сделать из прозрачного оргстекла толщиной 2...3 мм.
Фоторезак:
1 — основание (фанера, толщина 12 мм), 2 — ползунок, 3—ось (сталь, o 6 мм), 4—шайба (2 шт.), 5 — ролик (резина, o 50 мм), 6 — ручка (фанера, толщина 12 мм), 7 — прижим (сталь, толщина 3 мм), 8 — нож (сталь, толщина 2 мм), 9 — накладка (оргстекло, толщина 2 мм), 10— направляющая (сталь, толщина 2 мм), 11 — опора (2 шт.), 12 — упор (фанера, толщина 5 мм), 13—направляющая (труба o 12 мм), 14—опора (2 шт.), 15—пружина (2 шт.).

Лезвие делается из обломка толстого ножовочного полотна, обработанного на наждаке и доведенного на кожаном ремне или войлоке с пастой ГОИ. Вдоль короткой стороны резака установлена планка, обеспечивающая перпендикулярность сторон фотографии. На ней имеет смысл закрепить линейку с миллиметровыми делениями. Конкретные значения размеров основания зависят от потребностей фотографа. Однако в любом случае желательно, чтобы ширина составляла примерно половину длины.
М-К № 2/91