Это
приспособление сослужит вам хорошую службу —
облегчит сверление отверстий: в тисках с
редуктором усилие сжатия в полтора раза больше,
чем в обычных, что повышает надежность
закрепления, и маховик вращать удобнее, чем
обычную ручку. Меняя накладки (каждая из них
крепится к губкам двумя винтами М8), можно
зажимать детали различной конфигурации с
максимальной толщиной до 80 мм. В конструкции
тисков с редуктором все детали довольно просты,
изготовлены из стали распространенных марок.
Сначала к основанию приваривают уголковые
направляющие и неподвижную губку с накладкой.
Отдельно собирают подвижную губку: привинчивают
к ней накладку и ползуны, вставляют в гнездо
гайку-упор, а в нее — силовой винт. Все это
надевают на направляющие. Сваривают основание
редуктора из нескольких деталей: упора, уголков и
передней щеки; ставят на направляющие, пропустив
хвостовик силового вала через отверстие в упоре.
На силовой вал надевают шайбу, большую шестерню
со шпонкой из стали 45 и навинчивают гайку M18.
Следующим ставят на место верхний вал с малой
шестерней и шайбами и заднюю щеку редуктора,
которая тут же привинчивается к торцам
направляющих двумя винтами М6. Привинчивают
также кожух и тем самым заканчивают сборку
тисков. Последним крепится маховик: он
надевается на квадратный хвостовик верхнего
вала и фиксируется осевым винтом М6. Чтобы тиски
хорошо работали, необходимо смазать во время
сборки все трушиеся поверхности. Это будет
гарантией их долгой и верной службы.
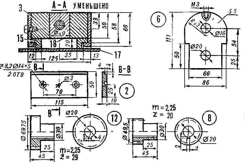
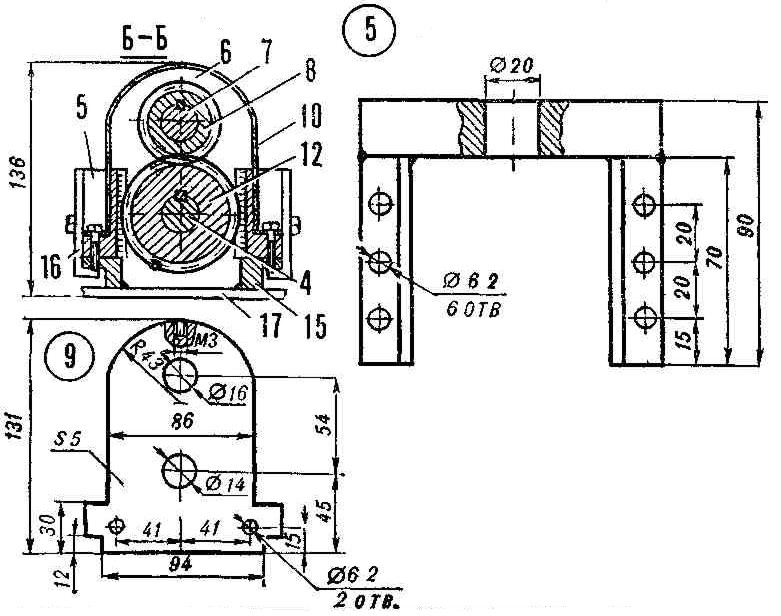
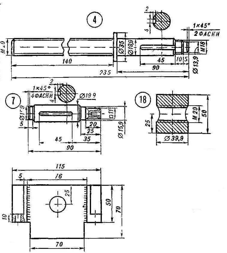
Конструкция тисков.




1 — неподвижная губка (Ст. 5),
2 — накладки (Ст 45),
3 — подвижная губка (Ст 5),
4 — силовой винт (Ст. 45),
5 — основание редуктора (Ст. 5),
6 — передняя щека (Ст 5),
7 — верхний вал (Ст 45),
8 — малая шестерня (Ст 45),
9 — задняя щека (Ст. 5),
10 — кожух (листовая сталь),
11 — маховик,
12 — большая шестерня (Ст. 45),
13 — винт М6,
14 -— гайка (Ст, 5),
15 — направляющие (Ст 5),
16 — ползун (Ст, 5),
17 — основание тисков (Ст. 5),
18 — гайка-упор (Ст. 45).
В. БЕЗРУКОВ, г. Вяземский, Хабаровский край
«М-К» № 1, 1985 г.