Микропроцессорный блок управления предназначен для модернизации стиральной машиной ЭВРИКА (есть варианты для Вятки и других машин с асинхронным двигателем привода барабана). Установленный в стиральную машину блок, позволяет производить стирку белья в автоматическом режиме, по программе задаваемой пользователем.
Для стирки белья используется водопроводная холодная и горячая вода, что позволяет:
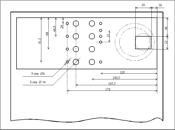
Внешний вид панели управления представлен на рисунке 1. На панели расположены 8 кнопок управления и 9 индикаторов состояния расположенных рядом. Светящиеся индикаторы состояния показывают включённые в программу режимы, а их мигание означает исполнение данного режима. Цифровой индикатор служит для отображения времени до окончания выполнения программы и для отображения настроек режимов при программировании.

Кнопка "СТИРКА/ ОСТАНОВ НАЛИВА" предназначена для установки необходимого времени стирки, которое изменяется с дискретностью 15 мин и при настройке кратковременно отображается на цифровом индикаторе. Показание цифрового индикатора "00" означает , что режим отключен.
При наборе воды, нажатие этой кнопки позволяет прекратить набор воды и продолжить выполнение программы.
Кнопка "ПОЛОСКАНИЕ" предназначена для установки необходимого количества циклов полосканий (описание цикла см. Режимы работы), которое кратковременно отображается на цифровом индикаторе при настройке режима в виде "П1 - П4". Индикация "П0" соответствует состоянию режима "ОТКЛЮЧЕНО".
Кнопка "СЛИВ" предназначена для включения
"02" и выключения режима "00".
При выполнении программы с отключенным режимом
"СЛИВ" последний слив воды в программе
производиться не будет. Это предотвращает
появление складок на белье из деликатных тканей
и дает возможность стирать несколько партий
белья в одной воде (для этого нужно набрать
необходимое время стирки, установить
температуру воды и отключить все остальные
режимы).
Кнопка "ОТЖИМ" предназначена для
установки необходимого времени отжима
"01"...."04" в минутах и выключения режима
"00".
При включении режима "ОТЖИМ" автоматически
включается режим "СЛИВ".
Если вы уверены, что вода в машине отсутствует,
"СЛИВ" можно отключить.
ВНИМАНИЕ! Включение режима "ОТЖИМ" с баком,
заполненным водой, может повлечь за собой выход
из строя основного двигателя.
Кнопка "БЕРЕЖНЫЙ РЕЖИМ" предназначена для включения и выключения режима. Режим предназначен для стирки деликатных тканей. При этом время непрерывного вращения барабана уменьшается, а паузы между вращениями увеличивается. При горящем индикаторе БЕРЕЖНЫЙ РЕЖИМ, автоматически отключается режим "ОТЖИМ" и блокируется.
Кнопка с тремя индикаторами состояния "ГОРЯЧАЯ", "ОЧЕНЬ ТЕПЛАЯ" и "ТЁПЛАЯ", предназначена для выбора необходимой температуры воды для стирки и полоскания. Состояние "ГОРЯЧАЯ" означает, что бак будет заполнен только горячей водопроводной водой. Состояние "ОЧЕНЬ ТЕПЛАЯ" - соответствует одновременному набору водопроводной воды из горячей и холодной магистрали. Состояние "ТЕПЛАЯ" соответствует одновременному набору водопроводной воды из горячей и холодной магистрали, но соотношение времени открытия клапанов холодной и горячей воды составляет 1: 2 соответственно.
Кнопка "ПУСК/СТОП" служит для запуска установленной программы. После начала мигания любого из индикаторов, этой же кнопкой программу можно остановить. После этого машина переходит в начальное состояние и готова к изменению программы или новому запуску программы.
Кнопка "ПАУЗА/УРОВЕНЬ" служит для
кратковременной остановки программы при работе
машинки. При установке режимов работы кнопка
позволяет установить необходимое время набора
воды. На цифровом табло при этом, отображается
ориентировочный уровень, т.к. уровень зависит от
давления воды в магистралях, количество
светящихся сегментов определяет время набора
воды. Набор воды прекращается по истечении
заданного времени или срабатывании датчика
уровня или по нажатию кнопки "СТИРКА/ ОСТАНОВ
НАЛИВА". При восьми светящихся сегментах
индикаторов набор воды производится до
срабатывания датчика уровня или до нажатия
кнопки "СТИРКА/ ОСТАНОВ НАЛИВА" и временем
не ограничивается. Для визуального контроля за
набором воды, допускается открывание крышки
стиральной машины и люка барабана.
Предупреждение: При открытой крышке стиральной
машины силовой агрегат заблокирован и машина
может только набирать и откачивать воду. Если
набор воды закончен, а барабан не вращается,
проверьте плотность закрытия крышки.
1. Стирка обычная или в бережном режиме
Последовательность действий:
- набор воды
- попеременное вращение барабана в течение
установленного времени
- слив воды
Время вращения и стоянки барабана при бережном
режиме составляет 20/10сек. в одну сторону и 20/10 сек.
в другую.
Время вращения и стоянки барабана при обычном
режиме составляет 25/05сек. в одну сторону и 25/05 сек.
в другую.
2. Полоскание
В этом режиме выполняется заданное количество
циклов полоскания, каждый из которых состоит из:
- набора воды
- попеременного вращения барабана в течение 5
минут
- слива воды
Эффект термоудара достигается за счет
полоскания белья попеременно в холодной и теплой
воде. При этом теплая вода набирается в
соответствии с установленной температурой воды,
а холодная набирается только из соответствующей
магистрали. Последнее полоскание всегда
происходит в теплой воде для уменьшения времени
высыхания белья.
3. Слив воды
Осуществляется слив воды.
4. Отжим
Последовательность действий:
- медленное вращение барабана для равномерного
распределения белья по барабану со сливом
- кратковременное быстрое вращение со сливом
- медленное вращение барабана для равномерного
распределения белья по барабану со сливом
- длительное быстрое вращение до истечении
установленного времени
Включить шнур питания в розетку.
Открыть вентили подачи холодной и горячей воды.
Настроить необходимую программу:
1. Установить время стирки или отключить (по
умолчанию 60 мин).
2. Установить количество полосканий или
отключить(по умолчанию 3 раза).
3. Включить или выключить слив (по умолчанию
включен).
4. Установить время отжима или отключить (по
умолчанию отключен).
5. Включить или выключить бережный режим (по
умолчанию отключен).
6. Выбрать температуру воды (по умолчанию
горячая).
7. Выбрать необходимый уровень воды (по умолчанию
6 сегментов - 3 мин.)
Загрузить бельё в барабан и засыпать стиральный
порошок. Для более эффективного использования
порошка и предотвращения образования комочков,
порошок следует растворить в небольшом
количестве теплой воды. Нажать кнопку
"ПУСК/СТОП". При этом начнут мигать режимы
выполняемые в данный момент. На цифровом табло
при наборе воды отражается условный уровень, а в
остальных режимах время до окончания программы.
После выполнения любого из режимов, его
индикатор гаснет. Таким образом, при выполнении
программы, информация на передней панели
показывает, какой режим выполняется, какие
режимы осталось выполнить и сколько минут
осталось до конца цикла.
После выполнения всей программы машина
останавливается. На передней панели загораются
индикаторы последней установленной программы
(при обесточивании стиральной машины программа,
заданная пользователем, не запоминается и при
включении машины загружается стандартная
программа).
Машина готова к повторному запуску.
Для уменьшения вибраций машинки при отжиме
рекомендуется, перед отжимом бельё в барабане
распутать и встряхнуть.
Убедиться в отсутствие воды в машине, в
противном случае воспользоваться режимом слив.
Закрыть механические вентили горячей и холодной
воды.
Отключить машину от сети.
1. Удалить механический блок управления.
2. Подготовить переднюю панель к установке блока
управления.
3. Установить микропроцессорный блок
управления в стиральную машину.
4. Наклеить лицевую панель.
5. Подключить согласно схеме электрической.
6. Подключить клапана, датчик уровня и шланг слива согласно схеме подключений.
7. Подключить шланги горячей и холодной воды, желательно также иметь стандартное подключение шланга слива к тройнику под раковиной или непосредственно к канализации.
Необходимо помнить, что для подключения стиральной машины необходимо иметь подвод воды, как от холодной, так и от горячей магистрали.
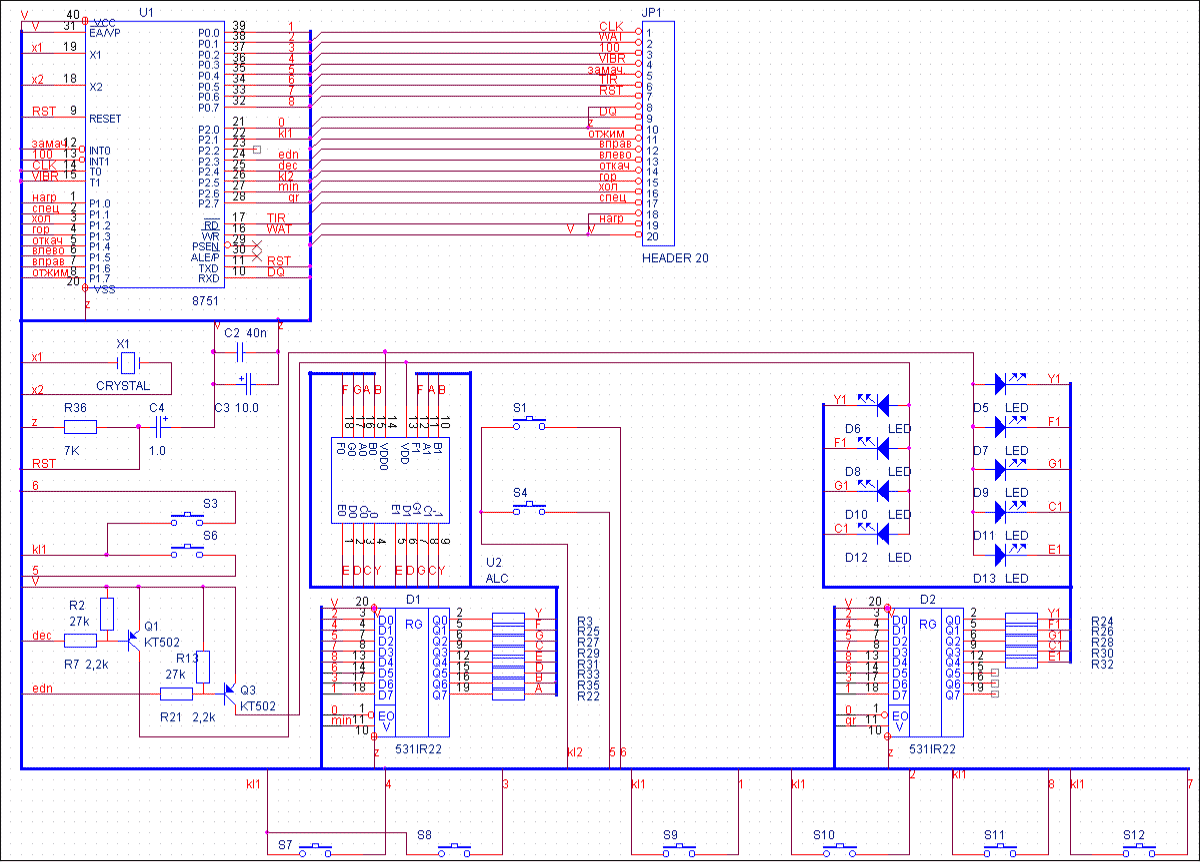
Схема управления состоит из двух плат.
На плате управления и индикации находятся микроконтроллер AT89C51, 8 кнопок управления, один сдвоенный семисегментный индикатор и 9 светодиодов отображающих ход программы. Управление семисегментным индикатором, диодами состояния и опрос состояния клавиатуры происходит в динамическом режиме при помощи двух параллельных регистров ИР22 и двух транзисторных ключей Q1, Q2 с частотой 100 гц. Частота формируется на силовой плате детектором перехода напряжения через "0".
Силовая плата состоит из: блока питания с выходными напряжениеми 12 вольт для питания силовых реле, 5 вольт для питания цифровой части, двух оптотиристоров ТО122, детектора перехода напряжения через "0" на оптроне АОТ101, силовых реле для управления машиной. Релейная схема силовой коммутации осуществляет все переключения только при обесточенных цепях, общее отключение осуществляется при помощи двух включенных встречно-параллельно оптотиристоров ТО122. Это позволяет использовать более маломощные (дешевые) реле т.к. переходные процессы в них отсутствуют.
Р.S. При неравномерном расположении белья в барабане, в режиме отжим, стиральная машинка довольно сильно вибрирует. Для автоматического определения большого дисбаланса в схему добавляется датчик ускорения, и программа автоматически повторяет попытки отжима до получения удовлетворительного результата. (Этот вариант находиться в работе).
Вы можете загрузить исходный текст программы микроконтроллера (файл avto_stirka.zip).
Автор проекта: Альберт Екимов (г. Электросталь Московской обл.).
Если Вы нуждаетесь в разработке какого-либо устройства с применением микроконтроллера, обращайтесь ко мне по E-mail: eutta@els.ru